← Înapoi la listă

📍 Locație

🏗️ Autorizație de Construcție: 823

Parsat
ID
44222
Nr. Cerere
84751
Data Cerere
2020-06-15
Nr. AC
823
Data Eliberare
2020-07-14
Nr. Aviz
785
Solicitant
ENGIE ROMANIA SA REPREZENTATĂ DE ANNE-MARIE GESTIN PENTRU BANĂ EMILIAN PRIN SC DIVERSINST SRL REPREZENTATĂ DE ŞTEFAN IONUŢ CLAUDIU PRIN ÎMPUTERNICIT TRĂISTARU TEREZA
Adresa
Strada Dobrogea nr. 23P bl. - sc. - et. - ap. -
Obiect Solicitare
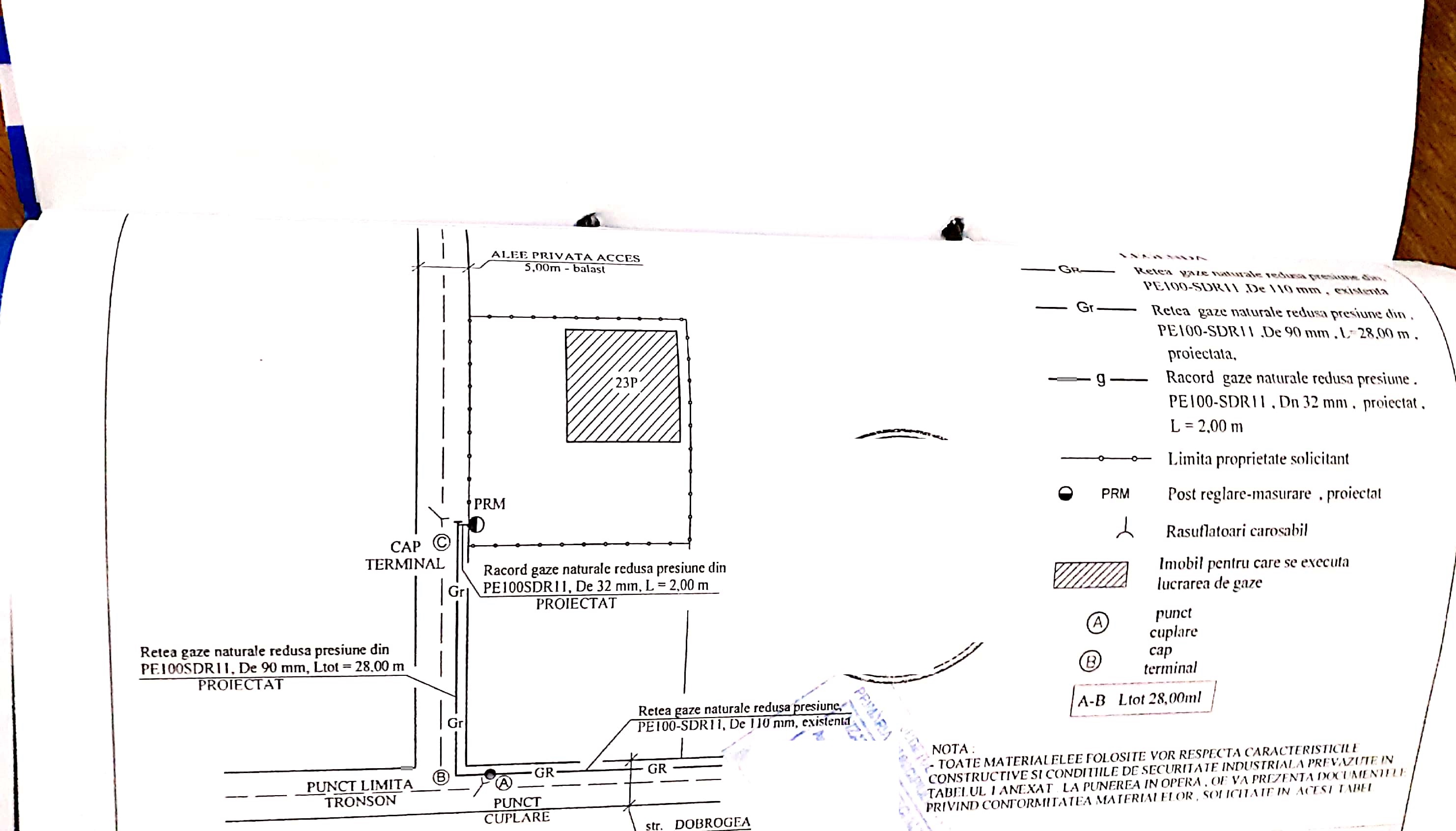
EXTINDERE REŢEA GAZE NATURALE PRESIUNE REDUSĂ ÎN LUNGIME DE 28,00 ML ŞI RACORD GAZE NATURALE PRESIUNE REDUSĂ ÎN LUNGIME DE 2,00 ML
Data Publicare
2020-07-15

📋 Date Parsate

Document

Nr. AC Document
823
Data AC Document
2020-07-14 00:00:00
Nr. Înregistrare
84751
Data Înregistrare
2020-06-15 00:00:00

Solicitant

Nume Solicitant
ENGIE ROMANIA SA REPREZENTATĂ DE ANNE-MARIE GESTIN PENTRU BANĂ EMILIAN PRIN SC DIVERSINST SRL REPREZENTATĂ DE ŞTEFAN IONUŢ CLAUDIU PRIN ÎMPUTERNICIT TRĂISTARU TEREZA

Lucrări

Tip Lucrări
construire
Obiect Lucrări
EXTINDERE REŢEA GAZE NATURALE PRESIUNE REDUSĂ ÎN LUNGIME DE 28,00 ML ŞI RACORD GAZE NATURALE PRESIUNE REDUSĂ ÎN LUNGIME DE 2,00 ML CONDIŢII: Se vor respecta condițiile precizate prin avizul de amplasament emis din partea Companiei de Apă Oltenia SA. Lucrările se vor executa cu respectarea soluției tehnice de racordare la sistemul de distribuţie a gazelor naturale nr.213965/16.01.2020 emisă de Distrigaz Sud Reţele. În conformitate cu HG nr.273/1994 modificat cu HG nr.343/2017 privind aprobarea Regulamentului de recepţie a lucrărilor de construcţii şi instalaţii aferente acestora, la încheierea lucrării conform cap.II art. 9,10 şi 11 din regulament, se va solicita recepţia la terminarea lucrărilor.

Adresă Detaliată

Județ
Dolj
Localitate
Craiova
Tip Stradă
Strada
Nume Stradă
Dobrogea
Număr
23P

Valoare & Taxe

Valoare Lucrări
7050
Taxă Autorizare
71

Durată

Durată Execuție
12 Luni
Valabilitate
12 Luni

Semnatari

Proiectant
SC DIVERSINST SRL
Primar
Mihail Genoiu
Secretar
Nicoleta Miulescu

📄 Conținut Text

R O M Â N I A JUDEŢUL DOLJ PRIMĂRIA MUNICIPIULUI CRAIOVA Nr. 84751 din   AUTORIZATIE DE CONSTRUIRE Nr. 823 din 14.07.2020 Ca urmare a cererii adresate de (1): ENGIE ROMANIA SA REPREZENTATĂ DE ANNE-MARIE GESTIN PENTRU BANĂ EMILIAN PRIN SC DIVERSINST SRL REPREZENTATĂ DE ŞTEFAN IONUŢ CLAUDIU PRIN ÎMPUTERNICIT TRĂISTARU TEREZA cu sediul (2) în judeţul , , satul sectorul , cod poştal , , nr. , bl. , sc. , et. , ap. , telefon/fax , email înregistrată la nr. 84751 din 15.06.2020 . în conformitate cu prevederile Legii nr. 50 / 1991, privind autorizarea executării lucrărilor de construcţii , republicată, cu modificările şi completările ulterioare, SE AUTORIZEAZĂ:executarea lucrărilor de construire pentru: EXTINDERE REŢEA GAZE NATURALE PRESIUNE REDUSĂ ÎN LUNGIME DE 28,00 ML ŞI RACORD GAZE NATURALE PRESIUNE REDUSĂ ÎN LUNGIME DE 2,00 ML CONDIŢII: Se vor respecta condițiile precizate prin avizul de amplasament emis din partea Companiei de Apă Oltenia SA. Lucrările se vor executa cu respectarea soluției tehnice de racordare la sistemul de distribuţie a gazelor naturale nr.213965/16.01.2020 emisă de Distrigaz Sud Reţele. În conformitate cu HG nr.273/1994 modificat cu HG nr.343/2017 privind aprobarea Regulamentului de recepţie a lucrărilor de construcţii şi instalaţii aferente acestora, la încheierea lucrării conform cap.II art. 9,10 şi 11 din regulament, se va solicita recepţia la terminarea lucrărilor. -pe imobilul - teren si construcţii - situat în judeţul Dolj , Municipiul Craiova , satul - , sectorul - , cod poştal - , Strada Dobrogea , nr.23P , bl. - , sc. -, et. - , ap.- . Cartea funciara (4) - /fişa bunului imobil - / nr. cadastral - -lucrări în valoare (5) de 7050 lei -în baza documentaţiei tehnice - D.T. pentru autorizarea executări lucrărilor de construire (D.T.A.C. + D.T.O.E.), respectiv desfiinţarea construcţiilor (D.T.A.D.) nr. 202/2020 din , a fost elaborată de SC DIVERSINST SRL , DOLJ , Municipiul CRAIOVA , satul - , sectorul - , cod poştal - Strada Vaslui , nr. 3 , bl. - , sc. - , et - , ap. - , respectiv de - -arhitect/conductor arhitect cu drept de semnătură, înscris în Tabloul Naţional al Arhitecţilor cu nr .-, în conformitate cu prevederile Legii nr. 184/2001 privind organizarea şi exercitarea profesiei de arhitect, republicată, aflat în evidenţa Filialei teritoriale - a Ordinului Arhitecţilor din România. FP-40-03, ver 01   CU PRIVIRE LA AUTORIZAREA EXECUTĂRII LUCRĂRILOR SE FAC URMĂTOARELE PRECIZĂRI:A. Documentaţia tehnică - D.T. (D.T.A.C. + D.T.O.E. sau D.T.A.D) - vizată spre neschimbare - , împreună cu toate avizele şi acordurile obţinute, precum şi punctul de vedere/actul administrativ al autorităţii competente pentru protecţia mediului, face parte integrantă din prezenta autorizaţie. Nerespectarea întocmai a documentaţiei tehnice - D.T. vizată spre neschimbare (inclusiv a avizelor şi acordurilor obţinute) constituie infracţiune sau contravenţie, după caz, în temeiul prevederilor art. 24 alin. (1), respectiv ale art. 26 alin. (1) din Legea nr. 50/1991 privind autorizarea executării lucrărilor de construcţii, republicată. În conformitate cu prevederile art. 7 alin. (15)-(15^1) din Legea nr. 50-1991 şi cu respectarea legislaţiei pentru aplicarea Directivei Consiliului 85/337/CEE (Directiva EIA) privind evaluarea efectelor anumitor proiecte publice şi private asupra mediului, în situaţia în care în timpul executării lucrărilor şi numai în perioada de valabilitate a autorizaţiei de construire survin modificări de temă privind lucrările de construcţii autorizate, care conduc la necesitatea modificării acestora, titularul are obligaţia de a solicita o nouă autorizaţie de construire. B. Titularul autorizaţiei este obligat: 1. să anunţe data începerii lucrărilor autorizate, prin trimiterea înştiinţării conform formularului anexat autorizaţiei (formularul-model F.13) la autoritatea administraţiei publice locale emitentă a autorizaţiei; 2. să anunţe data începerii lucrărilor autorizate, prin trimiterea înstiinţării conform formularului anexat autorizaţiei (formularul-model F.14) la Inspectoratul teritorial în construcţii, împreună cu dovada achitării cotei legale de 0,1 % din valoarea autorizată a lucrărilor de construcţii şi instalaţii aferente acestora; 3. să anunţe data finalizării lucrărilor autorizate, prin trimiterea înştiintării conform formularului anexat autorizaţiei (formularul-model F.15) la Inspectoratul teritorial in construcţii, odată cu convocarea comisiei de recepţie; 4. să păstreze pe şantier, în perfectă stare, autorizaţia de construire şi documentaţia tehnică - D.T. (D.T.A.C+D.T.O.E./D.T.A.D.) vizată spre neschimbare, împreună cu Proiectul Tehnic - P. Th şi detaliile de execuţie pentru realizarea lucrărilor de construcţii autorizate, pe care le va prezenta la cererea organelor de control, potrivit legii, pe toată durata executării lucrărilor; 5. în cazul în care, pe parcursul executării lucrărilor, se descoperă vestigii arheologice (fragmente de ziduri, ancadramente de goluri, fundaţii, pietre cioplite sau sculptate, oseminte, inventar monetar, ceramic etc.), să sisteze executarea lucrărilor, să ia măsuri de pază şi de protecţie şi să anunţe imediat emitentul autorizaţiei, precum şi Direcţia judeţeană pentru cultură, culte şi patrimoniu; 6. să respecte condiţile impuse de utilizarea şi protejarea domeniului public, precum şi de protecţie a mediului, potrivit normelor generale şi locale; 7. să transporte la - materialele care nu se pot recupera sau valorifica rămase în urma executării lucrărilor de construcţii; 8. să desfiinţeze construcţiile provizorii de şantier în termen de - zile de la terminarea efectivă a lucrărilor; 9. la începerea execuţiei lucrărilor, să monteze la loc vizibil "Panoul de identificare a investiţiei"(vezi anexa nr.8 la normele metodologice); 10. la finalizarea execuţiei lucrărilor, să monteze "Placuţa de identificare a investiţiei"; 11. în situaţia nefinalizării lucrărilor în termenul prevăzut de autorizaţie, să solicite prelungirea valabilitătii acesteia, cu cel puţin 15 zile înaintea termenului de expirare a valabilitaţii autorizaţiei de construire/desfiinţare (inclusiv durata de execuţie a lucrărilor); 12.să prezinte "Certificatul de performanţă energetică a clădirii" la efectuarea recepţiei la terminarea lucrărilor; 13. să solicite “Autorizaţia de securitate la incendiu” după efectuarea recepţiei la terminarea lucrărilor sau înainte de punerea în funcţiune a clădirilor pentru care s-a obţinut "Avizul de securitate la incendiu"; 14. să regularizeze taxa de autorizare ce revine emitentului, precum şi celelalte obligaţii de plată ce îi revin, potrivit legii, ca urmare a realizării investiţiei; 15. se declare construcţiile proprietate particulară realizate, în vederea impunerii, la organele financiare teritoriale sau la unităţile subordonate acestora, după terminarea lor completă şi nu mai târziu de 15 zile de la data expirării termenului de valabilitate a autorizaţiei de construire/desfiinţare (inclusiv durata de execuţie a lucrărilor). C. Durata de execuţie a lucrărilor este de 12 Luni calculată de la data începerii efective a lucrărilor (anunţată în prealabil), situaţie în care perioada de valabilitate a autorizaţiei se extinde pe întreaga durată de execuţie a lucrărilor autorizate. ÎNTOCMIT Dan Stelian Nita FP-40-03, ver01   D. Termenul de valabilitate al autorizaţiei este de 12 Luni de la data emiterii, interval de timp în care trebuie începute lucrările de execuţie autorizate. PRIMAR,   Mihail GenoiuSECRETAR GENERAL,Nicoleta Miulescu ARHITECT ŞEF, arh.Gabriela Miereanu Taxa de autorizare în valoare de 71 lei, a fost achitată conform Chitanţei nr. din .Prezenta autorizaţie a fost transmisă solicitantului DIRECT la data de însoţită de exemplar(e) din documentaţia tehnică -D.T., împreună cu avizele şi acordurile obţinute, vizate spre neschimbare. În conformitate cu prevederile Legii nr. 50/1991 privind autorizarea executării lucrărilor de construcţii, republicată, cu modificările şi completările ulterioare, se prelungeşte valabilitatea Autorizaţiei de construire de la data de până la data de După această dată, o nouă prelungire a valabilitaţii nu este posibilă, solicitantul urmând să obţină, în condiţiile legii, o altă autorizaţie de construire. PRIMAR,   SECRETAR GENERAL, ARHITECT ŞEF, Data prelungirii valabilităţii Achitat taxa de: lei, conform Chitanţei nr. din Transmis solicitantului la data de DIRECT. (1) Numele si prenumele solicitantului(2) Adresa solicitantului(3) Denumirea lucrării, descrierea concisă a lucrărilor autorizate, precum şi alte date extrase din D.T.A.C./D.T.A.D.(4) Se completează cu datele extrase din Cartea funciară sau din Fişa bunului imobil, după caz(5) Valoarea lucrărilor, declarată de solicitant, înscrisă în cererea de autorizare, calculată în funcţie de suprafaţa construită desfăşurată a construcţiilor ori valoarea lucrărilor de construcţii şi instalaţii aferente din avizul general al investiţiei(6) Se completeaza cu denumirea/titlul, nr. şi data elaborării documentaţiei, precum şi celelalte elemente de identificare. ŞEF SERVICIU Mariana Liliana FugaruÎNTOCMIT Dan Stelian Nita FP-40-03, ver01